Vrlo aktuelna tema kada su u pitanju renoviranja i proširenja porodice je stvaranje novog prostora za člana u enterijeru koji je najčešće ograničen kvadraturom. Isti problem imao je i naš čitalac Kristijan koji se za pomoć obratio Nejri Adilović, stručnoj saradnici Enterijer.ba. Nejra je predložila dva funkcionalna rješenja.
..................................................................................
Poštovani,
željeli bismo dobiti dodatnu spavaću sobu za dijete te bismo htjeli na najbolji mogući način iskoristiti prostor.
Stan je namješten kako je i prikazano na tlocrtu. Svi pregradni zidovi su od gips kartonskih ploča u kojima su i položene instalacije (klima, struja, telefon, TV), tako
da bi eventualno premještanje zidova obuhvatalo i malu rekonstrukciju instalacija.
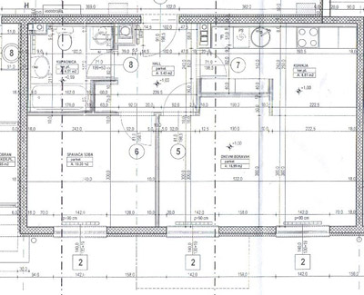
U prilogu Vam šaljem tlocrt stana. Stan je površine 48 m²
Unaprijed Vam se zahvaljujem na savjetima.
Lijep pozdrav!
Kristijan
..................................................................................
Poštovani Kristijane,
predložila bih Vam dva rješenja sa kojima dobijate jednu dodatnu spavaću sobu - dječiju sobu. S obzirom na to da je riječ o stanu male kvadrature i da je stan jednostrano orijentisan, nisu moguće velike intervencije u prostoru.
Na tlocrtu postojećeg stanja možete vidjeti shemu uklanjanja zidova i nove zidove. Detaljnije ću obrazložiti rješenja 1 i 2 u nastavku.
Rješenje 1 – dodati pregradni zid
Rušenjem zidova između dnevne sobe i kuhinje dobili biste jedinstven prostor. Dodavanjem pregradnog zida dobit ćete još jednu dječiju sobu. Forma i dimenzije hodnika i spavaće sobe ostaju iste. Pozitivna strana ovog rješenja je što imate dvije jasno diferencirane zone: dnevnu i noćnu zonu.
{rokbox album=|Glavna| title=|/}images/stories/5.Strucnjaci/Nejra_Adilovic/Kristijan/01.jpg{/rokbox}{rokbox album=|Glavna| title=|/}images/stories/5.Strucnjaci/Nejra_Adilovic/Kristijan/02.jpg{/rokbox}{rokbox album=|Glavna| title=|/}images/stories/5.Strucnjaci/Nejra_Adilovic/Kristijan/03.jpg{/rokbox}
Rješenje 2 – jedinstvena cjelina
Za rješenje 2 shema rušenja ostaje ista: ruši se pregradni zid između dnevnog boravka i kuhinje. Pozicija dnevnog boravka je promijenjena i direktno je povezana sa ulaznim hodnikom i kuhinjom. Prostor dnevnog boravka, kuhinje i hodnika predstavlja cjelinu. Dodavanjem pregradnog zida dobit ćete dodatnu dječiju sobu.
{rokbox album=|Glavna| title=|/}images/stories/5.Strucnjaci/Nejra_Adilovic/Kristijan/04.jpg{/rokbox}{rokbox album=|Glavna| title=|/}images/stories/5.Strucnjaci/Nejra_Adilovic/Kristijan/05.jpg{/rokbox}{rokbox album=|Glavna| title=|/}images/stories/5.Strucnjaci/Nejra_Adilovic/Kristijan/06.jpg{/rokbox}{rokbox album=|Glavna| title=|/}images/stories/5.Strucnjaci/Nejra_Adilovic/Kristijan/07.jpg{/rokbox}
Enterijer prostorija u stanu
Da biste zadovoljili funkcionalnost i estetiku potrebno je odabrati namještaj koji nije robusan i koji svojom dimenzijom ne predstavlja atak na prostor. Prema novoprojektovanom rješenju prostor dnevnog boravka je smanjen i potrudite se da ga što manje opteretite namještajem.
Za organizaciju prostorija u stanu pogledajte fotografije, referentne primjere, koji Vam mogu biti inspiracija za uređenje.
{rokbox album=|Glavna| title=|/}images/stories/5.Strucnjaci/Nejra_Adilovic/Kristijan/09.jpg{/rokbox}{rokbox album=|Glavna| title=|/}images/stories/5.Strucnjaci/Nejra_Adilovic/Kristijan/10.jpg{/rokbox}{rokbox album=|Glavna| title=|/}images/stories/5.Strucnjaci/Nejra_Adilovic/Kristijan/11.jpg{/rokbox}
Srdačan pozdrav,
Nejra Adilović, mr.arh
Stručna saradnica Enterijer.ba
E:
Izvori fotografija
www.interiorarcade.com
www.freshome.com
I vi možete dobiti BESPLATAN stručni savjet!
Pošaljite upit na
Uzimajući u obzir veliki broj zahtjeva, odgovor ćete dobiti u roku od mjesec dana.
Sve odgovore objavljujemo u rubrici 'Pitajte, odgovaramo'.
Bela Vida Studio
Bela Vida Studio za projektovanje i izvođenje radova nudi efikasan, siguran i ekonomičan pristup uređenju domova i profesionalnih enterijera, uz poštovanje funkcionalnosti u uređenju i želja svakog klijenta.
Bela Vida Studio okuplja tim iskusnih, profesionalnih arhitekata i dizajnera koji posvećenim radom i zaganjem postižu vrhunske rezultate u arhitektonskim ostvarenjima na našem tržištu.
ožete dobiti BESPLATAN stručni savjet!
Pošaljite upit na
Uzimajući u obzir veliki broj zahtjeva, odgovor ćete dobiti u roku od mjesec dana.
Sve odgovore objavljujemo u rubrici 'Pitajte, odgovaramo'.
Bela Vida Studio
Bela Vida Studio za projektovanje i izvođenje radova nudi efikasan, siguran i ekonomičan pristup uređenju domova i profesionalnih enterijera, uz poštovanje funkcionalnosti u uređenju i želja svakog klijenta.
Bela Vida Studio okuplja tim iskusnih, profesionalnih arhitekata i dizajnera koji posvećenim radom i zaganjem postižu vrhunske rezultate u arhitektonskim ostvarenjima na našem tržištu.