Kvalitetan razmještaj prostorija u stanu je osnova za udobno življenje. Upravo sa ovim problemom susreo se i naš čitalac Mario te je od Amine Prašo, stručne saradnice Enterijer.ba dobio nekoliko savjeta vezanih za uređenje, kao i predložen nacrt sa izmjenama.
..................................................................................
Dobar dan,
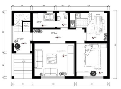
trebamo savjet za razmještaj prostorija a najviše neko rješenje stepenica za kat (radi se o preuređenju postojeće kuće). Na tlocrtu nisu ucrtane postojeće stepenice koje se nalaze sa lijeve strane od kupaonice u prostoriji 170x200 cm, ali su širine 60 cm, što nam ne odgovara (pod te prostorije je viši za nekih 30 cm u odnosu na ostatak kuće).
Slobodno prva stepenica može da bude van gabarita 170x200 cm. Otvoreni smo za sve opcije razmještaja prostorija, premještaja otvora za vrata i rušenja ili dogradnje zidova, s tim da je desna strana hodnika nosivi zid.
Kuća ima podrum koji nije ispod razine zemlje tj. kuća ima visoko prizemlje.
Naše želje:
WC odvojen od kupaonice
tuš kabina u kupaonici (razmišljali smo o 120x90 cm)
spavaća soba na kraju kuće (od ulaza)
ako je moguće da kuhinja i blagovaona budu odvojene od dnevne sobe (imali bismo stol za 6 ljudi)
već prije spomenute stepenice
NAPOMENA: jednog dana planiramo urediti kat na kojem bi se nalazile 2-3 spavaće sobe i kupaonica.
Namještaj nije kupljen tako da nemate nikakvih ograničenja s obzirom na dimenzije.
Za sve informacije slobodno me kontaktirajte na ovaj mail.
Hvala unaprijed,
Mario Topol
..................................................................................
Poštovani,
kao što vidim, jug je potpuno zanemaren prilikom projektovanja objekta, pa pretpostavljam da je sam položaj vaše kuće uslovio ovakav razmještaj.
Nisam željela previše odstupati od prvobitnog rješenja te se nadam da će ovo rješenje zadovoljiti vaše potrebe i obezbijediti vam neophodan komfor.
Izaberite stil koji vam odgovara
Što se tiče namještaja, vi možete urediti enterijer u stilu koji vama odgovara te sam ja ovom prilikom bila slobodna da vam pokažem neke od primjera uređenja dnevnog boravka i kuhinje sa trpezarijom.
Što se tiče hodnika, koji je prilično dug, bilo bi poželjno da ga uredite ili življim bojama ili nišama u koje biste mogli postaviti svjetiljke ili pak neko cvijeće koje ne zahtijeva previše svjetlosti.
{rokbox album=|Jovica| title=||/}images/stories/5.Strucnjaci/Amina_Praso/Mario/2.jpg{/rokbox}{rokbox album=|Jovica| title=||/}images/stories/5.Strucnjaci/Amina_Praso/Mario/3.jpg{/rokbox}{rokbox album=|Jovica| title=||/}images/stories/5.Strucnjaci/Amina_Praso/Mario/4.jpg{/rokbox}
Kupatilo – zona komfora
Kupatilo se sve više uređuje kao jako komforan prostor u kojem se duže boravi, uživajući u kupkama. Stoga vam šaljem i jednu sliku uređenja kupatila.
Bilo bi poželjno da zidove bojite svjetlijim bojama zbog manjka svjetlosti. Izbjegavajte tamne nijanse, osim ako ih ne koristite kao kontrast u cilju isticanja nekog komada namještaja ili sl.
Više o namještaju možete se savjetovati sa kolegama iz Primus Balkana ili Coincase, a za kupatilo tu je firma Economic.
Lijep pozdrav,
Amina Prašo, m.arh
Stručna saradnica Enterijer.ba
E:
Izvori fotografija
www.design-corps.co.uk
www.allsuperdesign.com
www.3543southportunit4n.com
I vi možete dobiti BESPLATAN stručni savjet!
Pošaljite upit na
Uzimajući u obzir veliki broj zahtjeva, odgovor ćete dobiti u roku od mjesec dana.
Sve odgovore objavljujemo u rubrici 'Pitajte, odgovaramo'.
Bela Vida Studio
Bela Vida Studio za projektovanje i izvođenje radova nudi efikasan, siguran i ekonomičan pristup uređenju domova i profesionalnih enterijera, uz poštovanje funkcionalnosti u uređenju i želja svakog klijenta.
Bela Vida Studio okuplja tim iskusnih, profesionalnih arhitekata i dizajnera koji posvećenim radom i zaganjem postižu vrhunske rezultate u arhitektonskim ostvarenjima na našem tržištu.