U stanu koji planiraju da urede naša čitateljka Marija i njena porodica, potrebna je organizacija prostora za svakog člana, kao i za dnevnu zonu. Naša stručna saradnica Adna Ahmedić pokušala je da na najbolji način ponudi rješenje koje bi odgovaralo svima. Evo kako ih je savjetovala.
..................................................................................
Poštovani,
obraćam Vam se s molbom da mi pomognete osmisliti raspored prostorija u stanu koji namjeravamo urediti u dogledno vrijeme.
Peteročlana smo obitelj, sa troje odrasle djece (21, 19, 13 god. - dva dečka i cura) pa bismo rado da svatko ima svoju sobu, ako je to moguće. Voljela bih blagovaonu i dnevni boravak orijentirati na jug zbog više dnevne svjetlosti, ali nije nužno. S obzirom na to da je prostor neizgrađen pristali bismo na izvedive intervencije (na tlocrtu su nosivi zidovi).
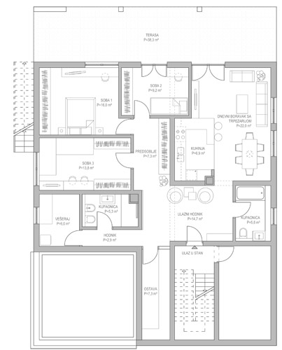
U prilogu Vam šaljem tlocrt koji sam skenirala, ali nisam baš najvještija u tome pa se nadam da će biti O.K.
Unaprijed Vam se zahvaljujem na savjetu i lijep pozdrav,
Marija
..................................................................................
Poštovana gospođo Marija,
prije svega želim da Vam se zahvalim što ste se obratili baš nama kako bismo Vaš dom učinili ljepšim i funkcionalnijim.
U izradi rješenja za Vaš stambeni prostor trebalo je obratiti pažnju na to da ste peteročlana porodica i da svaki član ima svoje posebne želje i zahtjeve, pa u skladu sa mogućnostima ponuditi najbolje rješenje.
Problemi pri izradi plana o uređenju
U toku izrade bila sam ograničena sa mnogo faktora na koje, nažalost, ne mogu da utječem, već samo da im se prilagođavam. Jedan od problema bile su već postavljene kanalizacione vertikale na nepovoljnim pozicijama u stanu.
Idući problem jeste pozicija prozorskih otvora što mi nije ostavilo mnogo slobode u kreiranju dispozicije Vašeg stana. Jedan od zahtjeva koji ste imali je bio da trpezarija i dnevni boravak budu orijentisani na južnu stranu sa dovoljnim prirodnim osvjetljenjem. Nažalost, nije postojala mogućnost da svako dijete dobije svoju sobu, upravo zbog rasporeda prozorskih otvora.
Oprezno sa nosivom konstrukcijom
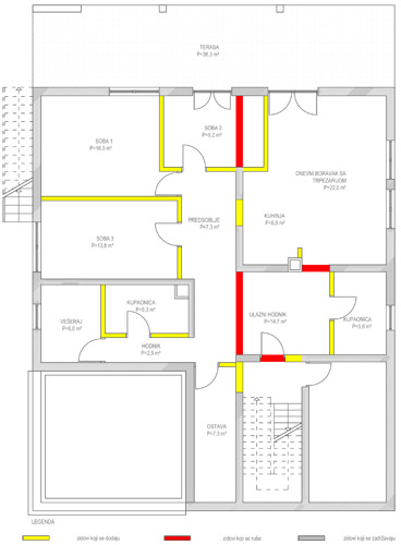
Idući problem koji se javio u rješavanju dispozicije jeste raspored nosivih zidova i moje nepoznavanje informacije o materijalu od kojeg su izgrađeni nosivi zidovi, pa ne mogu sa sigurnošću utvrditi u kojoj mjeri je dozvoljeno rušenje tih zidova.
Da bi se konstrukcija očuvala, potrebno je raspone premostiti gredama (čeličnim profilima) ukoliko je to moguće i izvodivo. Međutim, o takvim tehničkim stvarima i problemima ne mogu dati savjet, jer nosivu konstrukciju ne smijete ugroziti ni na jedan način.
Centralno postavljen stan
Primjetit ćete da sam ulaz u stan locirala tako da on bude centralno postavljen u odnosu na cjelokupni prostor. Iz ulaznog hodnika direktno pristupate kupaonici, ostavi te intimnom dijelu stana koji je od ulaznog hodnika odvojen predsobljem u kojem se nalazi ugradbeni plakar, kao i javnom dijelu stana. U intimne dijelove stana ubrajamo spavaće sobe, sanitarne čvorove koje koriste samo članovi porodice, kao i prateće prostore (ostava, vešeraj, garderoba).
Organizacija prostorija
Roditeljska spavaća soba i jedna dječija nalaze se na sjevernoj strani, a druga dječija (za djevojčicu) ima direktan izlaz na vanjsku terasu i orijentacija joj je zapadna, što baš i nije najpovoljnije. Spavaće sobe su prostrane, međutim, kao što sam već naglasila, nije bilo mogućnosti ubaciti još jednu.
Prostori dnevnog boravka, kuhinje i trpezarije nisu fizički odvojeni jedni od drugih, već samo vizuelno. Šank vizuelno odvaja kuhinju od ostatka prostora, ali je ipak ”ne zatvara“, što je veoma bitno, jer kuhinja nije direktno prirodno osvijetljena, nego preko prostora trpezarije.
Kako biste dobili direktnu vezu terase i dnevnog boravka, predložila bih Vam da prozorske otvore zamijenite dvokrilnim balkonskim vratima, uz neophodno rušenje parapeta.
Bogatiji za vešeraj
U Vašem pojašnjenju postojećeg stanja, dali ste mi informaciju koja je bila veoma važna, a to je da se glavni filter za vodu nalazi u sjevernom dijelu stana, ispod prvog prozora do garažnih temelja. Tako sam mogla da ponudim rješenje u kojem ćete u sklopu te prostorije imati vešeraj opremljen neophodnom bijelom tehnikom (veš-mašina, mašina za sušenje veša...). Na taj način biste izbjegli postavljanje veš-mašine u jednu od kupaonica, što će vam dodatno uštedjeti prostor.
Iskoristite prostor za ostavu
Pošto nema mogućnosti da se uz kuhinju locira i ostava, prostor za skladištenje dobila sam izmještanjem sadašnjeg ulaza u stan, i tako biste dobili uzak, ali iskoristiv prostor za ostavu koji možete opremiti prema svojim potrebama.
U prilogu, pored ponuđenog rješenja, stoji i plan adaptacije, odnosno plan rušenja postojećih i dograđivanje projektovanih zidnih pregrada.
Ukoliko budete imali još nekih pitanja, molim da mi se obratite kako bismo Vaš dom učinili idealnim mjestom za život Vaše peteročlane porodice.
S poštovanjem,
Adna Ahmedić, d.i.a
Stručna saradnica Enterijer.ba
E:
I vi možete dobiti BESPLATAN stručni savjet!
Pošaljite upit na
Uzimajući u obzir veliki broj zahtjeva, odgovor ćete dobiti u roku od mjesec dana.
Sve odgovore objavljujemo u rubrici 'Pitajte, odgovaramo'.