Izazov za arhitekte – organizacija prostora malog stana i ovoga puta je bio krajnje interesantan za Adnu Ahmedić, stručnu saradnicu Enterijer.ba. Ona je naše čitaoce Amilu i Jasenka savjetovala kako da stvore najfunkcionalniji, a opet vizuelno zanimljiv prostor. Ponudila je tri kvalitetne varijante uređenja, a na našim čitaocima je da izaberu onu koja im najviše odgovora.
..................................................................................
Poštovani, dobar dan!
Pišem Vam iz razloga što moja vjerenica i ja planiramo adaptirati manji stan za nas dvoje, eventualno troje. Svjesni smo činjenice da je stan mali, ali s obzirom na to da pratimo Vaše prijedloge i rješenja na Vašoj web stranici, nadamo se da ćete moći pomoći i nama da maksimalno iskoristimo prostor sa kojim raspolažemo.
Svjesni smo da bi to moglo biti komplicirano, ali voljeli bismo od prostora gdje je kuhinja i trpezarija napraviti malu spavaću sobu a kuhinju premjestiti na vanjski zid u dnevnoj sobi i zatvoriti balkon te napraviti od njega produžetak dnevne sobe. Za zatvaranje balkona smo se već konzultirali sa odgovornim općinskim službama i za to imamo dozvolu. Također bi nas interesirali Vaši savjeti vezani za parket tj. podne pločice na mjestima u stanu kao što su kuhinja, hodnik i zatvoreni balkon.
Ovo što sam Vam napisao je samo naš skromni i jednostavni prijedlog te se nadam da će osoba Vaše stručnosti moći dati pravi i konkretan prijedlog.
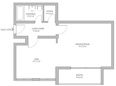
U prilogu se nalaze dva skromna tlocrta sa dopunom, što je širina tj. dubina balkona koju sam zaboravio naznačiti cca. 125 cm dok su crvenim krugovima naznačeni nosivi zidovi.
P.S. Voljeli bismo da nam gđica Adna Ahmedić, ukoliko je u mogućnosti, da savjet i svoje mišljenje.
Unaprijed hvala,
Amila i Jasenko
..................................................................................
Poštovani gospodine Jasenko,
prije svega želim da Vam se zahvalim što ste odlučili baš nama da se obratite kako bismo zajedno uspješno riješili dileme oko uređenja Vašeg doma.
U zahtjevu koji ste nam poslali, napisali ste da niste sigurni gdje da pozicionirate kuhinju, dnevni boravak i trpezariju. Sve tri ponuđene varijante je moguće izvesti uz neophodne izmjene.
Za početak, predložila bih Vam da stan pregradite na dva dijela, kako biste dobili spavaću sobu i prostor za dnevni boravak, kuhinju i trpezariju (3 u 1). Upoznali ste nas sa činjenicom da ste se konsultirali sa opštinom oko zatvaranja balkona, pa ne bi bilo loše da, ukoliko ste u mogućnosti, balkon pretvorite u dio prostora za dnevni boravak, odnosno trpezariju. Savjetovala bih Vas da se prije samog izvođenja, konsultujete sa izvođačima radova o neophodnim intervencijama kako biste balkonu dali drugu namjenu (postavljanje termoizolacije, parketa, skidanje pločica itd.).
Dobiti vrata standardnih dimenzija
Prije svega, mislim da je neophodno proširiti otvor za vrata u kupaonici, jer 65 cm (na postojećem stanju) nije optimalna dimenzija širine vrata. Savjetovala bih Vam da otvor proširite za 15 cm kako biste dobili vrata standardnih dimenzija. Kupatilo ne zahtijeva velike promjene, osim što bih preporučila da bojler, ukoliko je moguće, prebacite na pregradni zid između kupatila i ulaznog hodnika. Vrata prema dnevnom boravku nisu neophodna i ako ih uklonite, dobit ćete bolje vizure iz ulaznog hodnika. Spavaću sobu možete namjestiti prema Vašim željama, a ja Vam dajem moguća rješenja.
Vizuelna podjela prostora
Kako imate jedan cjelovit prostor u koji trebate smjestiti tri prostorije sa različitim namjenama, predlažem Vam da prostore podijelite samo vizuelno, ali da u dizajniranju kuhinje, trpezarije i dnevnog boravka obratite pažnju na boje i „temu“ koja će ova tri prostora objediniti, ali i svakom od njih dati posebnost.
Varijanta br. 1
U prvoj varijanti kuhinja je smještena na vanjski zid i od dnevnog boravka je vizuelno odvojena ostrvom u funkciji šanka koji je centralno postavljen u odnosu na kuhinju. Ovakva ostrva imaju višestruku namjenu. Naime, umjesto šanka, ostrvo Vam može poslužiti kao polica za knjige s jedne strane (okrenute prema dnevnom boravku) i za odlaganje kuhinjskog pribora s druge strane. Da biste dobili još bolji efekat vizuelnog odvajanja, savjetujem Vam da iznad samog šanka postavite ambijentalnu rasvjetu u vidu visećih rasvjetnih tijela ili spuštenog stropa, ukoliko Vam to dozvoljava visina prostora.
Trpezarija je smještena na novoprojektovani dio balkona, koji je u ovom slučaju sjedinjen sa ostatkom prostora. Na drugi ograđujući zid balkona možete pozicionirati element u kojem ćete imati dovoljno prostora da odložite sav pribor za ručavanje.
{rokbox album=|Jovica| title=||/}images/stories/5.Strucnjaci/Adna_Ahmedic/Jasenko/3.jpg{/rokbox}{rokbox album=|Jovica| title=||/}images/stories/5.Strucnjaci/Adna_Ahmedic/Jasenko/4.jpg{/rokbox}{rokbox album=|Jovica| title=||/}images/stories/5.Strucnjaci/Adna_Ahmedic/Jasenko/5.jpg{/rokbox}
Varijanta br. 2
Ne razlikuje se mnogo od prethodnog rješenja i najveća razlika je u postavci ostrva u kuhinji, koje je u ovom rješenju pozicionirano uz zid i umjesto šanka, kao vizuelne pregrade, ima prostor za sjedenje s jedne strane (na visini od 40 cm), a na strani gdje je okrenuto prema kuhinji, tu se nalazi prostor za odlaganje namirnica. Ovo rješenje je veoma praktično zbog mogućnosti dodatnih mjesta za sjedenje sa mobilnim jastučićima u sklopu elementa na kojem stoji TV-prijemnik.
{rokbox album=|Jovica| title=||/}images/stories/5.Strucnjaci/Adna_Ahmedic/Jasenko/6.jpg{/rokbox}{rokbox album=|Jovica| title=||/}images/stories/5.Strucnjaci/Adna_Ahmedic/Jasenko/7.jpg{/rokbox}{rokbox album=|Jovica| title=||/}images/stories/5.Strucnjaci/Adna_Ahmedic/Jasenko/8.jpg{/rokbox}
Varijanta br. 3
U ovom rješenju, kuhinja je pozicionirana na strani gdje je pregradni zid između spavaće sobe i dnevnog boravka. I u ovom rješenju ćete primijetiti da se nalazi ostrvo koje s jedne strane ima policu za knjige, a s druge strane obezbjeđuje dodatni prostor za odlaganje namirnica. Prema balkonu, u produžetku sa nosivim zidom, pozicioniran je šank za dva sjedeća mjesta. Trpezarija je ostala na istom mjestu kao i na prethodna dva rješenja.
{rokbox album=|Jovica| title=||/}images/stories/5.Strucnjaci/Adna_Ahmedic/Jasenko/9.jpg{/rokbox}{rokbox album=|Jovica| title=||/}images/stories/5.Strucnjaci/Adna_Ahmedic/Jasenko/10.jpg{/rokbox}
Ostajem u nadi da će Vam ovi savjeti pomoći da što bolje i ljepše uredite svoj životni prostor i još jednom Vam se zahvaljujem na ukazanom povjerenju.
S poštovanjem,
Adna Ahmedić
Stručna saradnica Enterijer.ba
E:
Izvor fotografija
www.homedesignideasnow.com
www.freshome.com
www.luxury-idea.com
www.homethelovely.com
I vi možete dobiti BESPLATAN stručni savjet!
Pošaljite upit na
Uzimajući u obzir veliki broj zahtjeva, odgovor ćete dobiti u roku od mjesec dana.
Sve odgovore objavljujemo u rubrici 'Pitajte, odgovaramo'.