Na pitanje naše čitateljke Adne kako urediti kuhinju i maksimalno iskoristiti prostor, te koje boje koristiti, Biljana Radumilo, stručna saradnica Enterijer.ba dala je korisne savjete, a za boje ovoga puta savjetuje toplije crvenu/narandžastu i hladniju tirkiznu.
..................................................................................
Poštovana gđo Biljana,
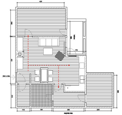
posebno mi se sviđaju Vaša rješenja i ideje koje ste davali čitateljima, pa sam se odlučila da Vas i ja zamolim za pomoć. U prilogu šaljem tlocrt stana, koji smo tek kupili i koji je prazan, pa Vas molim za rješenje kako bi bilo najbolje uraditi kuhinju, a da se maksimalno iskoristi prostor?
Također me interesuje Vaš prijedlog za uređenje dnevnog boravka, s obzirom na to da ima i ovaj dimnjak, te koje boje koristiti?
Unaprijed hvala!
S poštovanjem,
Adna
..................................................................................
Poštovana Adna,
zahvaljujem Vam se na povjerenju, zaista nam mnogo znače Vaše pohvale i povratne informacije.
Nepraktičan raspored prostorija
Prema tlocrtu stana koji ste mi poslali, vidim da Vam je raspored prostorija poprilično loše organizovan. Dolazi do sukoba u komunikacijama jer Vam nisu odvojene dnevna i spavaća zona. Iz tih razloga, a s obzirom na to da ne možete promijeniti raspored prostorija, veoma je bitno da napravite dobar raspored namještaja koji neće dodatno „lomiti“ linije kretanja u Vašem stanu. Također, kao što ste naveli u Vašem upitu, problem Vam predstavlja i dimnjak koji se nalazi u dnevnom boravku, a koji ne planirate koristiti.
Polica i komoda u ravni dimnjaka
Prije svega, bitno je da prostor ne opterećujete nepotrebnim namještajem. Moj savjet je jednostavna garnitura za sjedenje, koja je orijentisana djelimično prema zidnoj garnituri sa televizorom i djelimično prema prozoru.
Problem sa dimnjakom ćete riješiti tako što ćete sa obje strane postaviti police ili komodu u ravni dimnjaka, koji će na taj način predstavljati sastavni dio zidne garniture. Također, na njega možete pričvrstiti zidni nosač za TV, sa mogućnošću zakretanja ekrana i podešavanja ugla gledanja.
{rokbox album=|gk|}images/stories/5.Strucnjaci/Biljana_Radumilo/Adna/1.jpg{/rokbox}{rokbox album=|gk|}images/stories/5.Strucnjaci/Biljana_Radumilo/Adna/11.jpg{/rokbox}{rokbox album=|gk|}images/stories/5.Strucnjaci/Biljana_Radumilo/Adna/12.jpg{/rokbox}
{rokbox album=|gk|}images/stories/5.Strucnjaci/Biljana_Radumilo/Adna/16.jpg{/rokbox}{rokbox album=|gk|}images/stories/5.Strucnjaci/Biljana_Radumilo/Adna/17.jpg{/rokbox}{rokbox album=|gk|}images/stories/5.Strucnjaci/Biljana_Radumilo/Adna/2.jpg{/rokbox}
Popularna L kuhinja
L kuhinje jedan su od najpopularnijih oblika modernih kuhinja. Raspored L kuhinje omogućava dovoljno mjesta na radnim plohama i ormarićima, čak i više od dvostranih kuhinja. Velika prednost ovakvog oblika kuhinje je slobodan ugao na suprotnoj strani prostorije koji možete iskoristiti za šank i stolice, ukoliko nemate prostora za trpezariju.
{rokbox album=|gk|}images/stories/5.Strucnjaci/Biljana_Radumilo/Adna/06.jpg{/rokbox}{rokbox album=|gk|}images/stories/5.Strucnjaci/Biljana_Radumilo/Adna/07.jpg{/rokbox}
Dvije varijante za odabir boja
Što se tiče boja za dnevni boravak i kuhinju, one zavise od Vaših želja i efekta koji želite postići. Ja ću Vam ponuditi dvije varijante.
Ukoliko ste dovoljno hrabri možete se „poigrati“ kombinacijom crvene i narandžaste. Naravno, crvenu u bilo kojoj nijansi najbolje je koristiti umjereno, zato je dobra opcija da je koristite na jednom zidu i onda uskladite presvlake i namještaj da biste dopunili nijansu.
Ukoliko želite da Vaš dom zrači svježinom ljeta i mora, predlažem tirkizne tonove. Odličan izbor mogu da budu tapete kojima ćete obložiti jedan zid ili segmente zida. Tirkizni tonovi se vrlo dobro mogu ukomponovati sa zelenim, žutim i bež nijansama namještaja ili detalja u Vašem domu.
{rokbox album=|gk|}images/stories/5.Strucnjaci/Biljana_Radumilo/Adna/20.jpg{/rokbox}{rokbox album=|gk|}images/stories/5.Strucnjaci/Biljana_Radumilo/Adna/21.jpg{/rokbox}{rokbox album=|gk|}images/stories/5.Strucnjaci/Biljana_Radumilo/Adna/22.jpg{/rokbox}{rokbox album=|gk|}images/stories/5.Strucnjaci/Biljana_Radumilo/Adna/23.jpg{/rokbox}{rokbox album=|gk|}images/stories/5.Strucnjaci/Biljana_Radumilo/Adna/24.jpg{/rokbox}{rokbox album=|gk|}images/stories/5.Strucnjaci/Biljana_Radumilo/Adna/25.jpg{/rokbox}{rokbox album=|gk|}images/stories/5.Strucnjaci/Biljana_Radumilo/Adna/26.jpg{/rokbox}{rokbox album=|gk|}images/stories/5.Strucnjaci/Biljana_Radumilo/Adna/27.jpg{/rokbox}{rokbox album=|gk|}images/stories/5.Strucnjaci/Biljana_Radumilo/Adna/28.jpg{/rokbox}{rokbox album=|gk|}images/stories/5.Strucnjaci/Biljana_Radumilo/Adna/29.jpg{/rokbox}
Potrudila sam se da Vas mojim idejama usmjerim i djelimično rješim Vaše nedoumice. Nadam se da će Vam biti od koristi prilikom opremanja stana.
S poštovanjem,
Biljana Radumilo d.i.a.
Stručna saradnica Enterijer.ba
E:
Izvor fotografija
www.trendzona.com
www.housetohome.co.uk
www.picsdecor.com
www.design-decor-staging.com
I vi možete dobiti BESPLATAN stručni savjet!
Pošaljite upit na
Uzimajući u obzir veliki broj zahtjeva, odgovor ćete dobiti u roku od mjesec dana.
Sve odgovore objavljujemo u rubrici 'Pitajte, odgovaramo'.