Arhitektica Biljana Radumilo, stručna saradnica Enterijer.ba imala je pred sobom zadatak da „pomiri“ dnevne zone stana naše čitateljke Ane i da ponudi svoj prijedlog najbolje iskorištenog prostora. Sa odličnim enterijerskim rješenjem, Biljana je našoj čitateljki dala i nekoliko savjeta o tendencijama u modernoj arhitekturi unutrašnjeg prostora.
..................................................................................
Poštovani,
nedavno smo kupili stan i sada ga moramo renovirati no još uvijek se nismo odlučili kako napraviti raspored...
Dvije postojeće sobe ne bismo dirali jer imamo sina i kćer. Lijevo od ulaza željeli smo napraviti nama sobu a u ostatku prostora kuhinju, blagovaonu i boravak. Želja nam je zadržati balkon, naći mjesta za stol sa šest stolica i imati što manje zidova, ako je to moguće...
Molimo Vas za pomoć i unaprijed se zahvaljujemo.
Ana
..................................................................................
Poštovana Ana,
jedna od najvažnijih revolucija u uređenju domaćinstva krajem XX vijeka jeste svakako „open space“ koncept (otvoreni prostor). Savremeni način života polako ukida granice između privatnog, poslovnog i društvenog. Tako stambeni prostor postaje mjesto za život, rad, druženje i slobodne aktivnosti. „Open space“ je kompleksan prostor, sadržajno i funkcionalno, koji savršeno odgovara modernom načinu života, obezbjeđuje fleksibilnost prostora i namještaja.
Pravilan raspored elemenata prostora
Kako bi ovakav otvoreni prostor ispunio sve svoje uloge, posebno je važno uskladiti funkcionalne i estetske komponente. Funkcionalnost se, prvenstveno, odnosi na pravilan raspored elemenata unutar pojedinačnih grupa - dnevnog boravka, kuhinje, trpezarije, radnog prostora, te pravilan odnos između grupa. Boravak i obavljanje pojedinih aktivnosti u jednoj funkcionalnoj cjelini ne smije remetiti aktivnosti u drugoj. Komunikacijski tokovi među njima treba da budu jasni i logični kako se ne bi poremetila funkcija cijelog sklopa.
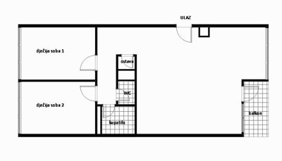
Prijedlog rješenja stana
Vođena Vašim potrebama i navedenim smjernicama nudim Vam jedno moguće rješenje Vašeg budućeg doma. Zid između spavaće sobe i dnevnog boravka je pod uglom od 30° zbog boljeg upadnog ugla svjetlosti a dobijeni prostor je iskorišten za TV komodu ili police. Prostor je organizovan na način da je trpezarija smještena u sredini, a lijevo i desno od nje će se locirati kuhinja i dnevni boravak. Ovakav međusobni odnos grupa omogućava nesmetanu komunikaciju kuhinje i trpezarije, gdje se uglavnom obavljaju aktivnosti pripreme i posluživanja hrane, dok se aktivnosti u dnevnom boravku događaju nezavisno. U koliko želite dodatno odvojiti dnevni boravak možete to postići pokretnim panelima.
{rokbox album=|Glavna| title=||/}images/stories/5.Strucnjaci/Biljana_Radumilo/Ana/2.jpg{/rokbox}{rokbox album=|Glavna| title=||/}images/stories/5.Strucnjaci/Biljana_Radumilo/Ana/3.jpg{/rokbox}{rokbox album=|Glavna| title=||/}images/stories/5.Strucnjaci/Biljana_Radumilo/Ana/4.jpg{/rokbox}
{rokbox album=|Glavna| title=||/}images/stories/5.Strucnjaci/Biljana_Radumilo/Ana/5.jpg{/rokbox}{rokbox album=|Glavna| title=||/}images/stories/5.Strucnjaci/Biljana_Radumilo/Ana/6.jpg{/rokbox}{rokbox album=|Glavna| title=||/}images/stories/5.Strucnjaci/Biljana_Radumilo/Ana/7.jpg{/rokbox}
Biljana Radumilo, d.i.a
Stručna saradnica Enterijer.ba
Izvori fotografija
www.didohome.com
www.dominfo5.com
www.dighomedesign.com
www.valcucine.com
www.shinyinterior.com
I vi možete dobiti BESPLATAN stručni savjet!
Pošaljite upit na
Uzimajući u obzir veliki broj zahtjeva, odgovor ćete dobiti u roku od mjesec dana.
Sve odgovore objavljujemo u rubrici 'Pitajte, odgovaramo'.
Bela Vida Studio
Bela Vida Studio za projektovanje i izvođenje radova nudi efikasan, siguran i ekonomičan pristup uređenju domova i profesionalnih enterijera, uz poštovanje funkcionalnosti u uređenju i želja svakog klijenta.
Bela Vida Studio okuplja tim iskusnih, profesionalnih arhitekata i dizajnera koji posvećenim radom i zaganjem postižu vrhunske rezultate u arhitektonskim ostvarenjima na našem tržištu.