Stanovi malih kvadratura pravi su izazov za uređenje i organizaciju prostora, a isti je imala i Biljana Radumilo, stručna saradnica Enterijer.ba. Ona je našem čitaocu sa dva rješenja pomogla u funkcionalnom organizovanju dječije sobe u stanu od 36m².
..................................................................................
Poštovani,
upravo sam bio na Vašoj staranici i pregledao vaša rješenja za preuređenje stanova. Ja živim sa suprugom i sinom od tri godine u malom stanu od ukupno 36m², a u tu kvadrauru ulazi i terasa koja nije zatvorena. U prilogu Vam šaljem i osnovu stana.
Obraćam Vam se sa razlogom da mi možda možete pomoći oko prijedloga rješenja za formiranje dječije sobe.
Unaprijed zahvalan,
Omer Džuzdanović
..................................................................................
Poštovani,
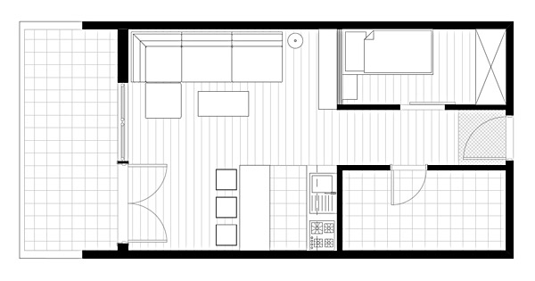
Vaš upit bio je pravi izazov za mene, jer je trebalo odgovoriti na Vaše potrebe uprkos ograničenjima koja postoje. Naime, riječ je o izduženom prostoru jednostrano orijentisanom, gdje dolazi do izražaja nedostatak prozorskih otvora.
Pretpostavljam da biste željeli da sa što manje intervencija prilagodite prostor svojim potrebama, što je uveliko odredilo osnovni koncept rješenja koje Vam predlažem.
Varijanta 1
Prvi predlog je da zazidate dio terase i na taj način dobijete više prostora za formiranje dječije sobe, a da je pri tom ne uskratite za dnevnu svjetlost. Između dječije sobe i trpezarije možete postaviti pokretni panel od zamućenog pleksiglasa koji će propuštati određenu količinu dnevne svjetlosti i koji možete po potrebi ukloniti ako se za tim ukaže potreba.

Ova varijanta ne zahtijeva mnogo intervencija u smislu izmještanja instalacija, a nudi prihvatljivo rješenje.
Varijanta 2
Ovaj prijedlog podrazumijeva dislociranje kuhinje, ali zauzvrat nudi cjelovitu dnevnu zonu i izolovanu noćnu zonu. Također nudi jedno moderno rješenje dnevne zone (openspace). Ovde je uočljiv nedostatak prirodne svjetlosti u dječijoj sobi. Ovakvi slučajevi se uglavnom rješavaju time da se između osvijetljene i neosvijetljene prostorije postavlja pregrada od zamućenog pleksiglasa koja propušta izvjesnu količinu dnevne svjetlosti, pri tome pružajući dozu intime.

Evo i jedan primjer kako mali stan može biti funkcionalan i besprijekoran.
{rokbox album=|Zelena| title=|magazin.net.hr|/}images/stories/5.Strucnjaci/Biljana_Radumilo/Omer/01.jpg{/rokbox}{rokbox album=|Zelena| title=|magazin.net.hr|/}images/stories/5.Strucnjaci/Biljana_Radumilo/Omer/02.jpg{/rokbox}{rokbox album=|Zelena| title=|magazin.net.hr|/}images/stories/5.Strucnjaci/Biljana_Radumilo/Omer/03.jpg{/rokbox}
{rokbox album=|Zelena| title=|magazin.net.hr|/}images/stories/5.Strucnjaci/Biljana_Radumilo/Omer/04.jpg{/rokbox}{rokbox album=|Zelena| title=|magazin.net.hr|/}images/stories/5.Strucnjaci/Biljana_Radumilo/Omer/05.jpg{/rokbox}
Nadam se da sam Vam barem malo pomogla svojim savjetima i idejama. Na Vama je da izaberete koncept koji Vam najviše odgovara.
Srdačan pozdrav,
Biljana Radumilo, d.i.a
Stručna saradnica Enterijer.ba
I vi možete dobiti BESPLATAN stručni savjet!
Pošaljite upit na
Uzimajući u obzir veliki broj zahtjeva, odgovor ćete dobiti u roku od mjesec dana.
Sve odgovore objavljujemo u rubrici 'Pitajte, odgovaramo'.
Bela Vida Studio
Bela Vida Studio za projektovanje i izvođenje radova nudi efikasan, siguran i ekonomičan pristup uređenju domova i profesionalnih enterijera, uz poštovanje funkcionalnosti u uređenju i želja svakog klijenta.
Bela Vida Studio okuplja tim iskusnih, profesionalnih arhitekata i dizajnera koji posvećenim radom i zaganjem postižu vrhunske rezultate u arhitektonskim ostvarenjima na našem tržištu.