Čitalac Danijel želi reorganizovati stan za svoju tročlanu porodicu. Od jednosobnog napraviti komforan dvosoban stan. Izazov prihvatila arhitektica Biljana Radumilo.
Poštovani,
Naime obraćam Vam se sa nadom da ćete mi pomoći u uređenju stana te povećanju broja soba u postojećem.
Mi smo tročlana obitelj sa malom kćerkicom od godinu dana. Stan se nalazi na prvom katu obiteljske kuće koji ima u svom sklopu velike dvije terase. Moja želja je probati uraditi dvosoban komforan stan. Molim Vašu velikodušnu pomoć i znanje i iskustvo da iz postojećeg stanja napravimo novouređeni lijepi stan sa velikom terasom za uživanje u ljetnim danima.

Što se tiče Vašeg rada dajem Vam potpuno otvorene ruke kada su u pitanju izmjene prostorija i rušenje zidova ili otvaranje novih otvora ili proširenja postojećih. To bi bio plus, jer želim više svjetla u samom stanu.
Znači sve je promjenjivo osim wc-a koji je novouređen, pa ga ne bih htio mijenjati, te bih želio da ostane na poziciji i stanju gdje je.
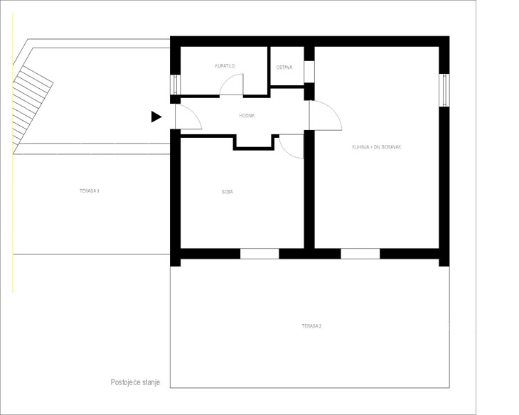
Također, volio bih i sugestiju za malu kotlovnicu gdje bi mi bili uređaji za zagrijavanje prostora. Do sada je to bila mala prostorija ispod skala na lijevom dijelu crteža.
Cijenim svaki Vaš odgovor ili savjet, te se radujem Vašem rješenju postojećeg stanja.
Danijel
....................................................................................................
Poštovani Danijele,
Prije svega zahvaljujem Vam na povjerenju koje ste ukazali upravo našem magazinu prilikom uređenja Vašeg životnog prostora.
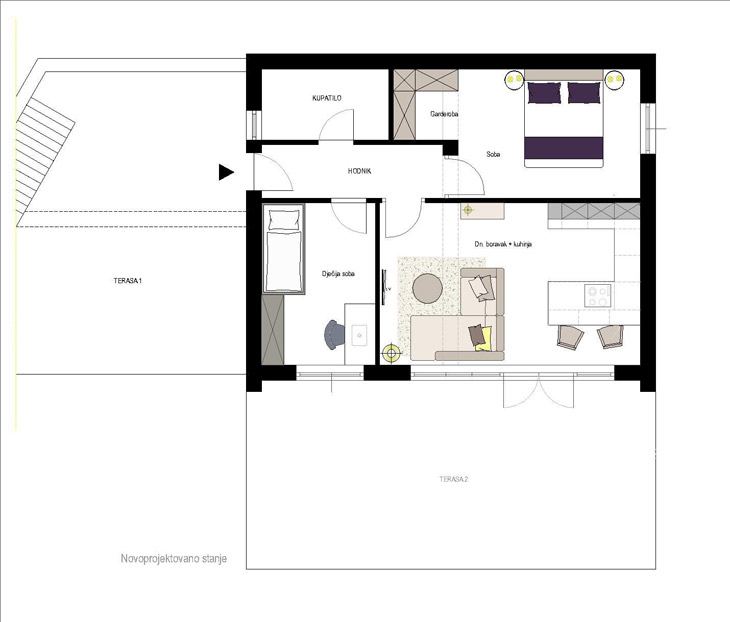
Vaša želja je bila da od jednosobnog stana, koji se nalazi na spratu porodične kuće, uredite lijep i komforan dvosoban stan za Vašu tročlanu obitelj.
U skladu sa Vašim zahtjevima i mogućnostima prostora nudim Vam sljedeće rješenje.

Na Vaš zahtjev pozicija kupatila je ostala ista s obzirom da ste ga već renovirali. Novi raspored transformisao je kuhinju i ostavu u spavaću sobu za roditelje, dok je dnevni boravak proširen smanjivanjem spavaće sobe. Nekadašnja spavaća soba pretvorena je u dječiju sobu, sa dovoljno prostora za krevet, ormar i radni stol.
Kuhinja i dnevni boravak spojeni su u jedno. Posljednjih nekoliko godina kuhinja dobija na važnosti u enterijeru, jer nije više prostor u kojem se samo priprema hrana već postaje mjesto okupljanja i druženja. Dnevna zona je dalje preko velikih staklenih površina povezana sa prostranom terasom, koja ljeti može da posluži kao trpezarija.
Iako ste naveli da su sve mogućnosti za uklanjanje zidova otvorene, ipak Vam savjetujem prethodnu konsultaciju sa inženjerima. Ja Vam dakle nudim tek prijedlog uređenja Vašeg životnog prostora.
Za tačan raspored namještaja, te ideje za odabir boja i tkanina, potražite na našoj stranici.
S poštovanjem,
Biljana Radumilo, dia
Stručna saradnica Enterijer.ba