U očekivanju proširenja porodice, naša redovna čitateljka Loreta želi unaprijediti organizaciju svog životnog prostora. Savjet za organizaciju raspoloživog prostora dala je arhitektica Gorana Pašalić, naša stručna saradnica.
Poštovani,
Zanimaju me vaše ideje za uređenje našeg životnog prostora. Željeli bismo imati otvoreni tlocrt. U prostor planiramo smjestiti:
- kuhinju (možda u liniji ili manju kutnu zbog uštede prostora)
- blagovaonicu (blagovaonski stol smjestiti uza zid)
- dnevni boravak (kutna garnitura)
- radni kutak (manji uredski stol)
- veća kupaonica (tako da stane i mašina za pranje rublja)
- veća spavaća soba - tako da stane i dječji krevetić
** što se tiče ovih balkonskih vrata s desne strane tlocrta, ako smetaju možemo ih i maknuti **

Stan planiramo s proširenjem obitelji proširiti u potkrovlje, tako da moramo predvidjeti i prostor za stube u jednom smjeru (možda najbolje u hodniku ili na kraju dnevnog boravka), a prostor ispod stuba iskoristiti za ormar, radni stol ili slično.
Kada danas/sutra adaptiramo stube, spavaću sobu premjestit ćemo u potkrovlje tako da dobijemo na prostoru (proširiti dnevni boravak) u donjem dijelu stana.
Svaki prijedlog je dobro došao.
Unaprijed se zahvaljujem.
Srdačan pozdrav,
Loreta
...........................................................................................
Poštovana Loreta,
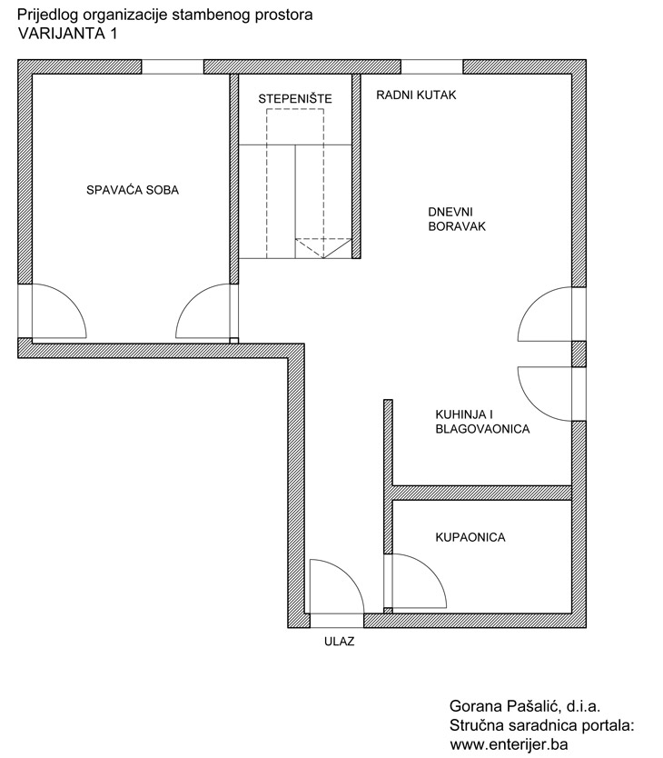
Zahvaljujem se na upućenom upitu i interesu za naš savjet. Prostor za koji ste nam dostavili nacrt ima jako mnogo potencijala i Vaše želje po pitanju organizacije se mogu ispuniti na više načina. Na osnovu onoga što ste napisali uz nacrt, pokušala sam da Vam osmislim prijedlog organizacije prostora koji vas može usmjeriti za dalje opremanje.
Zahtjev da se u postojeći prostor smjesti dnevni boravak, kuhinja sa blagovaonicom, spavaća soba, radni kutak i kupatilo je realan i dimenzije prostora omogućavaju dobru organizaciju. Na osnovama koje Vam šaljem možete vidjeti da sam sve navedeno organizovala kao jedan otvoreni prostor, sa minimalnim brojem pregrada, tako da imate slobodu u opremanju. Pozicije namještaja se mogu mjenjati u skladu sa Vašim potrebama, a na raspolaganju imate jednu otvorenu i čistu cjelinu dnevne zone.


Međutim za buduće proširenje stambenog prostora i za najbolji položaj stepenica potrebno je malo detaljnije analizirati cjelokupan objekat. Da li se radi o potkrovlju kuće, spratu kuće, drugoj etaži stana? Sve su to faktori koji utiču na poziciju stepenica. Prilikom pozicioniranja stepeništa treba voditi računa o tome gdje stepenište „izlazi“, te da se prostor na spratu iskoristi na najbolji mogući način. Isto tako od pozicije instalacija zavisi i položaj kuhinje i kupatila, a ukoliko biste na spratu planirali kupatilo trebalo bi da se oba kupatila povežu na jednu vertikalu.




Naravno, postoji još mnogo detalja i tehničkih pitanja na koja treba obratiti posebnu pažnju, da biste na kraju dobili najbolje rješenje. Moj najiskreniji savjet bi bio da u ovoj fazi osmišljavanja i projektovanja prostora uključite stručno lice, arhitektu i na taj način osigurate sebi kvalitetan i funkcionalan prostor koji će Vam služiti dugi niz godina, i nakon proširenja porodice. Stručni tim Enterijer.ba Vam stoji na raspolaganju.
Pored osnova šaljem Vam i nekoliko fotografija dnevne zone sa stepenicama kao glavnim ekcentom u prostoriji, koje mogu biti odlična inspiracija za dalje opremanje Vašeg životnog prostora.
Srdačan pozdrav,
Gorana Pašalić, dia
Stručna saradnica Enterijer.ba