
Kada je stan ograničen manjom kvadraturom, a djetetu potreban lični kutak, tada ne preostaje ništa drugo nego napraviti velike izmjene u organizaciji prostora. Na upit naših čitalaca Jasmina Imširpašić, stručna saradnica Enterijer.ba, dala je odlično rješenje i pokušala olakšati posao višečlanoj porodici.
..................................................................................
Poštovani!
Obraćamo Vam se jer nam je potrebna pomoć stručnjaka, arhitekte.
Naime, htjeli bismo pregradnjom stana napraviti dječiju sobu, ako je moguće. Svi svijetli otvori su na istočnoj strani. Spavaća soba ima prozor čitavom širinom. U kuhinji je prozor širine 120cm, a lođa ima svjetlo pune širine i visine.
Postoji mogućnost iskorištavanja prostora pred ulaznim vratima stana koji bi imao svjetlo sa zapadne strane, širine 120cm i visine 245cm ili manje. Svi vanjski, kao i zid između spavaone i kuhinje, su noseći.
U privitku šaljem tlocrt stana.
Unaprijed zahvaljujemo na pomoći!
..................................................................................
Poštovani,
u rješavanju Vašeg problema veliku ulogu ima orijentacija stana i insolacija, jer jedini izvor svjetlosti je sa istoka, kako su otvori i pozicionirani. Pored problema sa insolacijom, velikom dubinom prostorija i malom kvadraturom stana, uspjela sam Vam predložiti rješenje u kojem svako ima svoj kutak.
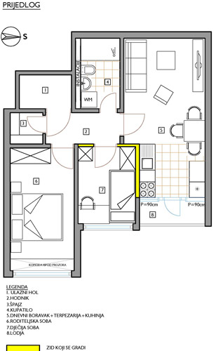
Nisu rađene neke radikalne promjene u stanu, glavni zadatak je bio isprojektovati prostor za dječiju sobu, koja je projektovanjem predviđena na prostoru gdje se sada nalazi kuhinja. Ali krenimo redom.
Minimalne izmjene u organizaciji prostora i odabiru boja
Hodnik i špajz ostaju isti. Nisu se vršile nikakve promjene. Moj savjet je da hodnik bude u nekim vedrijim tonovima, zbog nedostatka svjetlosti, a uloga špajza pored prostora ostave može biti kao mali cipelarnik-garderober, jer vidno je da u stanu nedostaje prostora za garderobu. Kupatilo ostaje istih dimenzija.
Komoda sa više funkcija
U spavaćoj sobi također nisu vršene izmjene. Problem ove sobe je što je njena širina 245cm, a sam krevet je širok 200cm, tako da od zida do kreveta ostaje slobodnih 45cm. Međutim, pozicioniranje kreveta u kojem bi glava došla tačno ispod prozora nije prihvatljivo rješenje i moj prijedlog je da se ispod prozora pozicionira komoda sa ladicama, (prostor za odjeću), a ujedno ta komoda može služiti kao toaletni stolić.
Dnevni prostor kao jedna cjelina
Dnevni boravak, trpezarija i kuhinja spojeni su u jednu cjelinu i imaju prirodno osvjetljenje od lođe.
Na zapadnoj strani, odnosno na lijevoj strani od ulaska u prostoriju, smješten je prostor za odmor uz televiziju. Trpezarijski stol se nalazi na sredini tog prostora, dok je kuhinja pozicionirana u dva reda, sa izlaskom u lođu.
Zbog pozicioniranja kuhinje u dva reda, predlažem da se širina (koliko zauzimaju kuhinjski elementi) zazida do visine 90cm, a stakleni portal ostaje na sredini, cijelom svojom dužinom i širinom.
Dječija soba u jednoj liniji
Što se tiče dječije sobe ona je predviđena na prostoru gdje je trenutno kuhinja. Zbog mogućnosti prirodnog osvjetljenja ovo je jedino mjesto za projektovanje te sobice.
Njena mala kvadratura nas ograničava sa dispozicijom prostora, ali u takvim slučajevima predlažem Vam dječije sobe koje su organizovane u jednoj liniji (ormar, krevet, prateće police, radni stol). Na taj način će jedna strana sobe biti popunjena namještajem, a preostali prostor će biti slobodan.
Primjeri tako organizovanih dječijih soba:
{rokbox album=|Glavna| title=|www.centralnarhitecture.com|/}images/stories/5.Strucnjaci/Jasmina_Imsirpasic/Od_kuhinje_do_djecije_sobe/1.jpg{/rokbox}{rokbox album=|Glavna| title=|www.centralnarhitecture.com|/}images/stories/5.Strucnjaci/Jasmina_Imsirpasic/Od_kuhinje_do_djecije_sobe/2.jpg{/rokbox}{rokbox album=|Glavna| title=|www.centralnarhitecture.com|/}images/stories/5.Strucnjaci/Jasmina_Imsirpasic/Od_kuhinje_do_djecije_sobe/3.jpg{/rokbox}{rokbox album=|Glavna| title=|www.centralnarhitecture.com|/}images/stories/5.Strucnjaci/Jasmina_Imsirpasic/Od_kuhinje_do_djecije_sobe/4.jpg{/rokbox}
Potrudila sam se da Vam grubo predočim moju ideju - kako u malom stanu napraviti da svako ima svoj kutak. Predlažem Vam da cijeli stan uredite minimalistički, i u vezi sa namještajem i u vezi sa odabirom boja, jer mali prostori ne trpe jake boje.
Sretno!
Lijep pozdrav,
Jasmina Imširpašić, d.i.a
Stručna saradnica Enterijer.ba
E:
I vi možete dobiti BESPLATAN stručni savjet!
Pošaljite upit na
Uzimajući u obzir veliki broj zahtjeva, odgovor ćete dobiti u roku od mjesec dana.
Sve odgovore objavljujemo u rubrici 'Pitajte, odgovaramo'.