Čitateljka Tea planira preseliti se u drugi stan, te je potražila savjet od naše stručne saradnice kako ga funkcionalno organizovati i opremiti. Savjet dala arhitektica Lana Barać.
................................................................................................................
Dobar dan,
Vidjela sam na vašim stranicama mogućnost slanja upita za organizaciju enterijera. Budući da se trebam preseliti u drugi stan, bila bih jako zahvalna na stručnim savjetima koje se tiču organizacije prostora dnevnog boravka, kuhinje i hodnika.
Stan je namijenjen za jednu žensku osobu, starosti 30 godina.
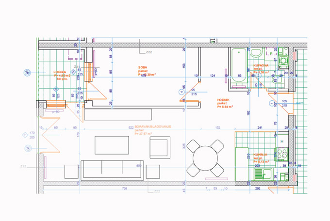
U prilogu šaljem tlocrt stana i sliku dnevnog boravka. Radi se o jednosobnom stanu, pravokutnog oblika, koji na kraćoj strani ima duge francuske prozore. Postojeći namještaj ne namjeravam koristiti, tako da osim dimenzija stan nema nikakvih drugih zadanih parametara. Također, spreman sam na manje intervencije u stanu ako mislite da su potrebni.
Među obaveznom opremom podrazumijevam sjedeću garnituru, trpezarijski i radni stol, garderobne ormare i kuhinju sa svim elementima. Posebno bi mi bilo drago ako bi se moglo u enterijer uklopiti ambijentalno osvjetljenje.
Hvala vam na pomoći i idejama,
Tea
................................................................................................................
Poštovana Tea,
Drago mi je što ste prilikom uređenja svog životnog prostora povjerenje ukazali upravo našem magazinu i odlučili se da od nas potražite savjet.
Klasični dnevni boravak
Iz priložene slike tlocrta i fotografija Vašeg stana, zaključila sam da se radi o izduženom prostoru dnevnog boravka i trpezarije između kojih ne postoji fizička barijera. S obzirom na činjenicu da se radi o prostoriji relativno skromnih dimenzija, nisam željela da pretjerano komplikujem sa rasporedom namještaja. A predloženu dispoziciju možete vidjeti u priloženoj skici.

U dnevnom boravku sam odlučila da Vam predložim klasične komade poput trosjeda i fotelje. Naspramni zid bi mogao da posluži za postavljanje police ili komode sa televizorom, u zavisnosti od Vaših ličnih afiniteta. Kako biste prostor učinili većim i prostranijim, savjetujem Vam postavljanje ogledala na uzdužni zid na koji se naslanja trosjed.
Budući da se radi o velikoj praznoj plohi, predlažem Vam da razmislite o simetričnom rasporedu elemenata, čiji bi centar bio pomenuti trosjed. Bilo da se radi o rasporedu slika, lampi, stolića ili drugih dekorativnih elemenata u prostoru. Naravno, ne preporučujem Vam da ovaj savjet uzmete banalno i zdravo za gotovo, ali asocijacija na simetriju koja izuzetno prija ljudskom poimanju estetike je nešto o čemu biste mogli da razmislite. U tom smislu izdvojila sam nekoliko primjera sa interneta koji Vam mogu biti misao vodilja i poslužiti kao inspiracija.
Jednostavna trpezarija
U trpezarijskom dijelu, također predlažem jednostavan pristup. Odlučila sam se za okrugli trpezarijski sto sa četiri stolice, koji mi se logikom nametnuo kao najoptimalniji, budući da u svom upitu niste precizno izrazili željeni kapacitet trpezarije.
{rokbox album=|Erges|}images/stories/5.Strucnjaci/Lana_Barac/Tea/tea10.jpg{/rokbox}{rokbox album=|Erges|}images/stories/5.Strucnjaci/Lana_Barac/Tea/tea11.jpg{/rokbox}{rokbox album=|Erges|}images/stories/5.Strucnjaci/Lana_Barac/Tea/tea12.jpg{/rokbox}{rokbox album=|Erges|}images/stories/5.Strucnjaci/Lana_Barac/Tea/tea13.jpg{/rokbox}{rokbox album=|Erges|}images/stories/5.Strucnjaci/Lana_Barac/Tea/tea14.jpg{/rokbox}{rokbox album=|Erges|}images/stories/5.Strucnjaci/Lana_Barac/Tea/tea15.jpg{/rokbox}{rokbox album=|Erges|}images/stories/5.Strucnjaci/Lana_Barac/Tea/tea16.jpg{/rokbox}{rokbox album=|Erges|}images/stories/5.Strucnjaci/Lana_Barac/Tea/tea17.jpg{/rokbox}
U ovom dijelu bih Vam savjetovala da se osmjelite i prostor učinite zanimljivim na neki od predloženih načina. Bilo da se radi o izboru zanimljivog namještaja, kao recimo u slučaju da se odlučite da nabavite sve četiri različite stolice. Ukoliko preferirate da u prostor unesete boju, možda poželite da tapacirung na svakoj stolici bude u različitoj boji. A ukoliko preferirate klasiku i jednostavnost, ohrabrila bih Vas da upotrijebite smjele detalje u vidu zanimljivog i upečatljivog rasvjetnog tijela iznad trpezarijskog stola. Izdvojene primjere možete pronaći u nastavku.
Iskreno se nadam da sam Vam svojim savjetima pomogla i otklonila neke dileme. Mnogo uspjeha, sreće i zabave u formiranju budućeg životnog prostora želi Vam,
Lana Barać, d.i.a.
Stručni saradnik Enterijer.ba