Potkrovlja su najčešće prostor koji sa dobrom organizacijom može da ispuni želje i najzahtjevnijih. Naša čitateljka Mateja se za savjet o uređenju kuhinje u potkrovlju obratila Lejli Tanović, stručnoj saradnici Enterijer.ba magazina koja je savjetovala kuhinjski pult kao pregradnu cjelinu i mnogo svijetlih boja u samom uređenju.
..................................................................................
Poštovani,
trebala bih savjet kako da uredim potkrovlje. Naime, selim se kod zaručnika u kuću u potkrovlje. Ali imamo problem: ne znamo kamo da stavimo kuhinju.
Krov je jako nizak i nemamo ideje. Stvarno nam je potrebna pomoć. Ako imate bilo kakvu ideju, bila bih Vam jako zahvalna.
Unaprijed Vam hvala,
Mateja Brnas
..................................................................................
Poštovana Mateja,
potkrovlja općenito imaju niži i kosi strop, tako da s jedne strane to predstavlja poteškoću i stvara zabrinutost kod budućeg korisnika, kako najbolje iskoristiti prostor, no s druge strane potkrovlja su izazovi i mogu se pravilno, funkcionalno i estetski oblikovati.
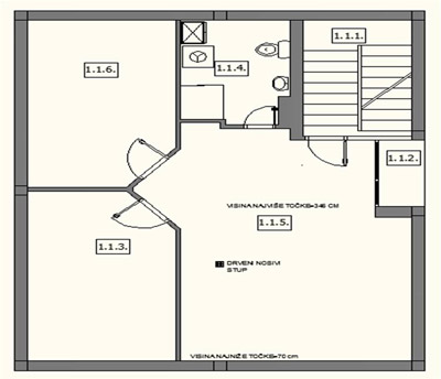
Kuhinja smještena između dvije sobe
Vaš stan ima povoljan raspored prostorija. Kuhinju bi bilo najbolje smjestiti između dvije sobe, tako što biste srušili pregradne zidove, kao što je prikazano na crtežu. Kuhinja je riješena u obliku slova L.
Postavljanjem šanka (pulta) dobio bi se dodatni prostor u kuhinji a i proširio bi se kapacitet trpezarijskog prostora. Ukoliko visina nadzitka dozvoljava, moguće je postaviti i viseće elemente. U ovom slučaju kuhinja je povezana sa trpezarijom i sobom za dnevni boravak i dijeli je pult. Tako da je formiran “otvoreni prostor”, koji daje savremenu notu Vašem stanu.
Namještaj po mjeri najbolje rješenje za potkrovlje
Primjenom savremenih materijala i izradom namještaja po mjeri moguće je najbolje opremiti potkrovlje, prilagoditi prostoru i kosinama stropa.
Potrebno je učiniti potkrovlje ugodnim za boravak, zato je najbitnije unijeti što više bjeline i svjetlosti. Upravo na taj način ćemo razbiti predrasudu kako su potkrovlja, tamna i neugodna za boravak.
Najbolje je koristiti bijelu boju za stropove, svjetliju boju za namještaj i istaći drvenu konstrukciju stupova i greda.
Nadam se da će Vam prostorni prikazi enterijera poslužiti kao inspiracija za uređenje Vašeg stana.
{rokbox album=|Glavna| title=||/}images/stories/5.Strucnjaci/Lejla_Tanovic/1.jpg{/rokbox}{rokbox album=|Glavna| title=||/}images/stories/5.Strucnjaci/Lejla_Tanovic/2.jpg{/rokbox}{rokbox album=|Glavna| title=||/}images/stories/5.Strucnjaci/Lejla_Tanovic/3.jpg{/rokbox}
{rokbox album=|Glavna| title=||/}images/stories/5.Strucnjaci/Lejla_Tanovic/4.jpg{/rokbox}{rokbox album=|Glavna| title=||/}images/stories/5.Strucnjaci/Lejla_Tanovic/5.jpg{/rokbox}{rokbox album=|Glavna| title=||/}images/stories/5.Strucnjaci/Lejla_Tanovic/6.jpg{/rokbox}
Pozdrav!
Lejla Tanović, mr.arh
Stručna saradnica Enterijer.ba
Izvori fotografija
www.apartmentmodern.com
www.interiorshowoff.com
www.interijernet.hr
I vi možete dobiti BESPLATAN stručni savjet!
Pošaljite upit na
Uzimajući u obzir veliki broj zahtjeva, odgovor ćete dobiti u roku od mjesec dana.
Sve odgovore objavljujemo u rubrici 'Pitajte, odgovaramo'.
Bela Vida Studio
Bela Vida Studio za projektovanje i izvođenje radova nudi efikasan, siguran i ekonomičan pristup uređenju domova i profesionalnih enterijera, uz poštovanje funkcionalnosti u uređenju i želja svakog klijenta.
Bela Vida Studio okuplja tim iskusnih, profesionalnih arhitekata i dizajnera koji posvećenim radom i zaganjem postižu vrhunske rezultate u arhitektonskim ostvarenjima na našem tržištu.