Koje boje odabrati, te da li staviti krevet od 140 ili 160 cm i visoko uzglavlje, samo su neke od dilema sa kojima se susrela naša čitateljka Tea. Odgovor na upit dala stručna saradnica Merima Delić.

Poštovani,
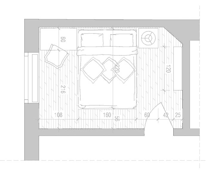
Obraćam Vam se za savjet vezano za organizaciju poprilično male spavaće sobe dimenzija 2.8 sa 3.9 m. Ja sam ženska osoba od 35 godina i živim sama u stanu. Zgrada je napravljena u starom stilu gradnje s visokim stropovima kao što se vidi na slici. Tek sam se preselila tako da nema postojećeg namještaja koji planiram iskoristiti, a budući da garderobu držim u drugoj prostoriji u spavaćoj sobi nije potreban ormar, mada bih voljela da se prostor što je moguće funkcionalnije iskoristi, po mogućnosti s radnim stolom ili nekim dodatnim stalkom, stolicom ili slično. Jako volim elegantno uređene sobe, u kojima vlada harmonija i osjećaj mira prije spavanja. Uglavnom mi se sviđaju neutralni tonovi boja, poput sive, bež ili svjetilije boje drveta, ali volim kada su one razbijene nekom bojom koja daje naglasak tipa plava, roza, možda crna ili boja bakra.
Također sviđa mi se poigravanje teksturama u enterijeru gdje je paleta boja jednostavna. Imam postojeću tamnosivu presvlaku za krevet koju bih i dalje koristila, pa je to jedini od ograničavajućih faktora u vidu boja. U sobu bih stavila bračni krevet. Jako mi se sviđaju oni s velikim uzglavljem, ali s obzirom na dimenzije sobe voljela bih kad bi uzglavlje bilo što uže. Nadalje, zbog velike lajsne uz parket (visina 20 i debljina 3 cm) pitam se kako bi uopće uzglavlje moglo biti namješteno, a da je naslonjeno na zid. Također, prilično dvojim za dimenzije kreveta između 140 i 160, pa bih molila Vaš savjet i u tom pogledu.
Unaprijed se zahvaljujem i radujem Vašem rješenju,
Tea
...............................................................................................
Poštovana,
Javili ste nam se sa problemom male spavaće sobe. Kako je vidljivo u tlocrtu soba ima cca. 11 m2 te ima pomalo nezgodan oblik i poziciju otvora. Sve ovo otežalo vam je donošenje odluke kako najbolje iskoristiti prostor.
S obzirom da ste reki da vam ormar nije potreban u ovoj sobi i da želite mirnu, spokojnu, oazu za odmor i relaksaciju, naši prijedlozi išli su u tom smjeru.

Dvojili ste između dvije veličine kreveta i naš prijedlog je da se odlučite za onu od 160 cm širine. Također, iako kreveti sa bogatim uzglavljima izgledaju divno, u ovoj sobi to bi bio pogrešan potez. Uzglavlje može biti divno i bez toga da bude jako široko i da zauzima mnogo prostora. S obzirom da se radi o sobi sa jako velikom svijetlom visinom, predlažemo da uzglavlje bude nešto više.
Osluškujući Vaše potrebe predlažemo dva rješenja. U prvom rješenju uz krevet se smješta toaletni stolić, koji se može u iznimnim situacijama koristiti i kao radni. Na zidu pored vrata predlažemo postavljanje uskog konzolnog stola, za sitnice koje nam svima uvijek trebaju, a i za izlaganje umjetničkih djela i detalja koji bi oživjeli ovu sobu.

U drugoj varijanti krevet ostaje na istom mjestu, dok se umjesto toaletnog stolića predlaže formiranje mjesta za čitanje i opuštanje pored prozora nakon dugog dana.
Kada su u pitanju boje i materijali koje bi bilo najbolje upotrijebiti, predlažemo nježnu paletu punu svijetlih boja sa dodatkom drveta za toplinu i jednom akcentnom bojom koja se neće previše nametati u prostoru. Na ovaj način nećete zagušiti malu sobu i ona će uvijek biti svijetla i spokojna. Možete razmisliti i o postavljanju dekorativnih lajsni na zidove kao i o nešto raskošnijem lusteru. Prednost ovakve gradnje jeste što taj ekstravagantniji stil neće izgledati napadno u njoj.
U nastavku pogledajte moodboard koji bi savršeno odgovarao za jednu ovakvu prostoriju. Krevet na njemu ima uzglavlje koje neće zauzeti mnogo prostora i previše "odbiti" krevet od zida, a opet svojim izgledom naglašava krevet koji i jeste glavni komad namještaja u sobi.

Stolica, nježne boje rumenila, unose dašak elegancije u cijelu priču i čini jedan poseban akcentni komad koji nije baš za svaki prostor.
Na kraju konzolni i toaletni stolić su funkcionalni komadi, idealni za ovako male prostore, a svojim izgledom doprinose skladu i estetici prostora.
Merima Delić, dia
Stručna saradnica Enterijer.ba
I vi možete dobiti BESPLATAN stručni savjet!
Pošaljite upit na
Uzimajući u obzir veliki broj zahtjeva, odgovor ćete dobiti u roku od mjesec dana.