Čitalac Dalibor je zamolio da mu pomognemo u uređenju stana od 26 m2. Odgovor dala stručna saradnica Merima Delić.

Poštovani,
Molim Vas za pomoć oko uređenja stana od 26 m2. U stanu će živeti dve studentice. U prilogu Vam šaljem dimenzije stana. Molim Vas savet za najbolje iskorišćenje prostora.

Hvala unapred.
Dalibor
..................................................................................................................................................
Poštovani,
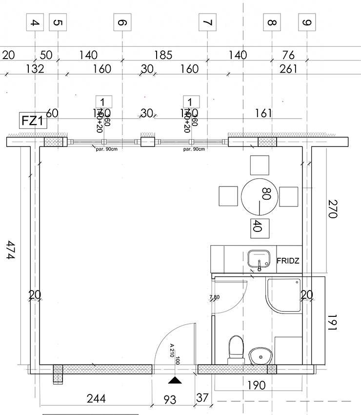
Javili ste nam se sa problemom kako organizovati mali stan za dvije studentice.

S obzirom da se radi o garsonijeri, dakle stan nema odvojenu spavaću sobu, cilj je unutar jednog otvorenog prostora napraviti zone, vizuelno ili sa pregradama, koje će služiti različitim namjenama.
Ovo je moguće postići zoniranjem pomoću tepiha, grupisanjem namještaja, ili postavljanjem pregrada u prostor. Pregrade ne trebaju biti novi zidovi nego treba da budu djelimično prozirne kako bi i onako mali prostor ostao prozračan.
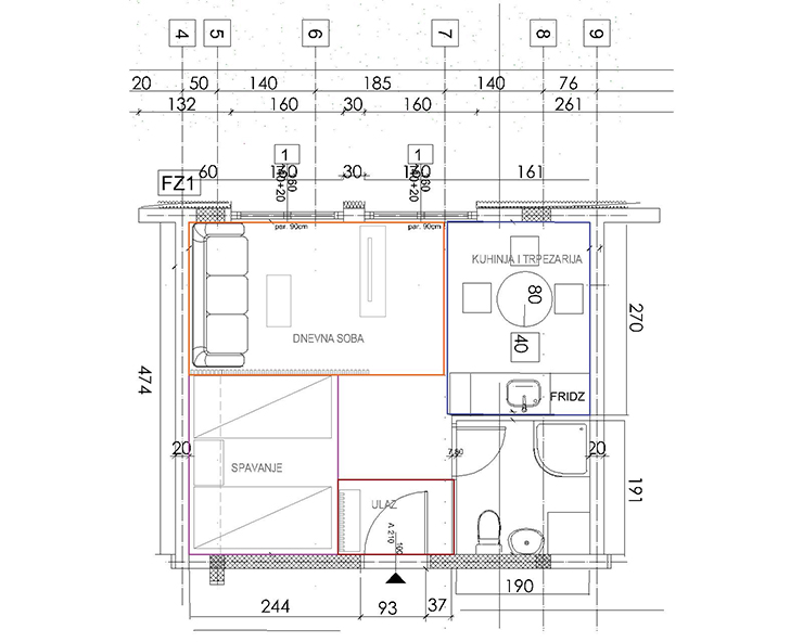
Prvi prijedlog rješenja vašeg problema koristi pregrade od drvenih letvica. Na samom ulazu mogao bi se napraviti cipelar u donjem dijelu, sa letvicama u gornjem, kako bi se ulaz odvojio od ostatka stana. Sa desne strane formira se prostor za spavanje sa dva kreveta i noćnim ormarićem.
Ostatak prostora koristit će se kao mali dnevni boravak.
S obzirom na veličinu prostora moguće je smjestiti samo dvosjed, sa eventualno još jednom foteljom. Komoda za TV u ovom slučaju pravi pregradu prema trpezariji i kuhinji.
S obzirom na nedostatak prostora za odlaganje moguće je iznad kreveta postaviti do vrha plafona viseće ormariće.
Tlocrt stana u tom slučaju će izgledati ovako.

Kao što se vidi stan je na ovaj način jasno podijeljen u zone.
Kako bi izgledale pregrade i ormarići možete vidjeti u slikama sa interneta. Mnogo je ideja kako iskoristiti prostor. S obzirom da je prostor poprilično mali najbolje je pratiti svijetlu šemu boja sa akcentima od drveta.


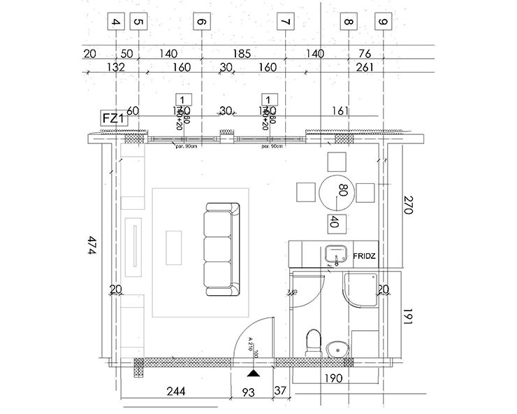
U drugom slučaju najduži zid u stanu mogao bi se iskoristiti za postavljanje dva zidna kreveta zajedno sa ormarima za odlaganje. U ovom slučaju trebalo bi krevete spuštati svakog dana, dok bi se u toku dana cijeli prostor koristio kao dnevna soba. Garnitura za sjedenje se leđima okreće kuhinju i ulazu te tako vizuelno odvajamo prostor.

Kako bi se iskoristio prostor oko kreveta zavisi od visine prostora i potrebe stanara, ali neki od primjera
su u nastavku.


Merima Delić, dia
Stručna saradnica
I vi možete dobiti BESPLATAN stručni savjet!
Pošaljite upit na
Uzimajući u obzir veliki broj zahtjeva, odgovor ćete dobiti u roku od mjesec dana.