U malenom stanu smještenom u staroj kamenoj kući na otoku, dvije četveročlane porodice provode svoje ljetne dane odmora. No, s vremenom se pokazalo kako taj prostor više ne zadovoljava njihove potrebe.

Kako bi unaprijedili funkcionalnost stana i osigurali ugodniji boravak, porodice su odlučile krenuti u potpuno renoviranje. U procesu planiranja adaptacije, ključne savjete pružila je arhitektica Merima Delić, čiji su prijedlozi usmjereni na optimizaciju prostora i stvaranje modernog, svijetlog ambijenta prilagođenog kako djeci, tako i odraslima.
...
Upit čitaoca Miroslava
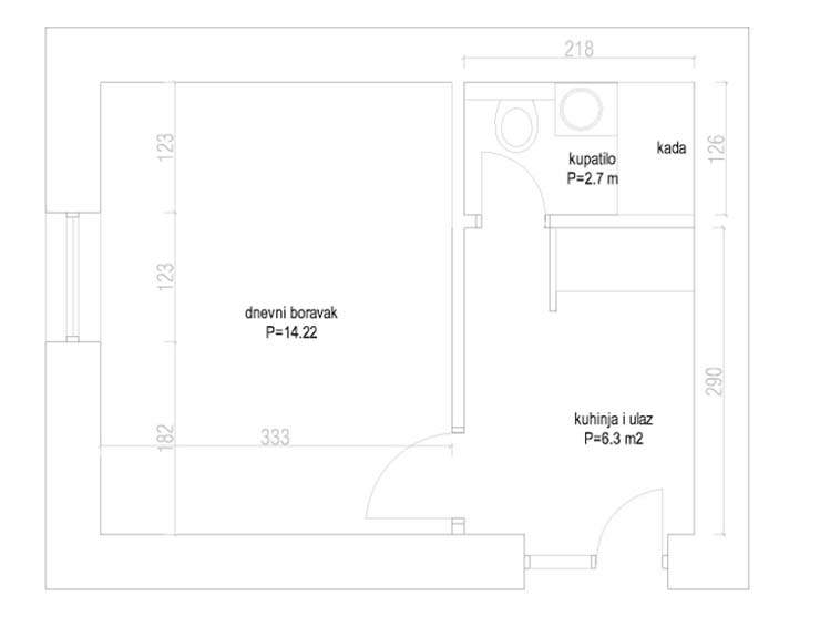
Priložene su slike i tlocrt stana površine cca. 24 m² u staroj kamenoj kući na otoku.

Stan se trenutno koristi isključivo ljeti za godišnji odmor dvije četveročlane obitelji (dolazimo na smjene):
- Prva obitelj ima dvije djevojčice od 7 i 5 godina.
- Druga obitelj ima dva dječaka od 14 i 10 godina.
Generalno, ideja je da 4 osobe (u budućnosti 4 odrasle osobe) mogu relativno udobno boraviti u prostoru.



Trenutno je najveći problem to što tri osobe moraju spavati na bračnom krevetu, a jedna na podu na sklopivom krevetu iz fotelje. Dodatni problem su stol i hladnjak koji blokiraju ulaz u stan, što otežava prolaz.




Naš plan je potpuno renovirati stan, zamijeniti namještaj, pločice, instalacije i rasvjetu, te napraviti hidroizolaciju zidova (koliko je moguće, jer se ljušte na više mjesta). Kupatilo je takođe u lošem stanju i potrebno ga je renovirati. Ukoliko je moguće, željeli bismo ugraditi perilicu rublja i walk-in tuš umjesto klasične kade.
Što se tiče želja, jedna obitelj se boji uklanjanja zida između sobe i kuhinje, dok druga smatra da bi to moglo povećati iskoristivost i protočnost prostora.
Što se internih preinaka tiče, prepuštamo vama da predložite najbolje rješenje za optimizaciju prostora. Otvoreni smo i za druge ideje redizajna pregradnih zidova i unutrašnjih otvora.
Ormar i namještaj u sobi dodatno blokiraju prostor, a većinom su neiskorišteni, pa ih možemo drastično smanjiti (potrebna nam je otprilike samo polovina starog ormara, a komode i sanduk na uzglavlju kreveta nisu potrebni). Također, potreban nam je prostor za odlaganje suncobrana i stalka za sušenje robe s terase, koji trenutno čuvamo iza sobnih vrata, naslonjene na zid uz ormar.
Parket u sobi je star i dotrajao (u kuhinji su pločice), a generalna ideja je da postavimo podne pločice u cijelom stanu radi lakšeg održavanja.
Što se tiče materijala i boja, preferiramo moderan (skandinavski) dizajn sa svijetlim bojama i jednostavnim formama.
Ovo je okvirni pregled naših želja, a za dodatna pitanja stojimo na raspolaganju.
Srdačan pozdrav,
Miroslav
...
Odgovor arhitektice Merime Delić
Javili ste nam se sa problemom organizacije male kuće na otoku. Vjerujem da ste i sami svjesni da se radi o prostoru koji je jako teško efikasno organizovati kako bi zadovoljio zahtjeve stavljene pred njega. Prije svega bilo je potrebno pronaći način da četiri odrasle osobe mogu spavati u isto vrijeme u kući, onda imati kuhinju, odlaganje, perilicu u kupatilu i slično.
Sretna okolnost je što planirate potpunu adaptaciju objekta pa se nadam da Vam neće biti strašno i pomijeranje instalacija, jer jedino na takav način možemo postići da prostor zadovolji sve vaše potrebe.
Kako je vidljivo u tlocrtu postojećeg stanja korisni prostor jako je ograničen, a u njega moramo smjestiti dva dupla kreveta. No, najveća zamjerka su ipak kupatilo i kuhinja.
Kupatilo je jako malo i ostane li u postojećem rasporedu u njega ne može stati perilica, čak ni ona uska sa punjenjem sa gornje strane. Kuhinja je jako mala i potpuno je blokirana trpezarijskim stolom.

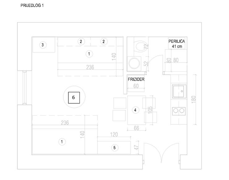
Nakon analize prostora ponudit ćemo Vam dva rješenja. Oba zahtijevaju određene intervencije na instalacijama, a razlikuju se po tome gdje se nalaze kreveti, organizaciji kuhinje i kupatila. Kupatilo mora ostati na svom mjestu, ali imamo prostora da unutar njega pomijeramo elemente i da malo preuredimo kuhinju. S obzirom da ste naveli da težite skandinavskom stilu naši prijedlozi namještaja ići će u tom smjeru.
Kako bismo postigli da četiri odrasle osobe mogu spavati u datom prostoru morat ćemo se poslužiti namještajem na razvlačenje. Standardni bračni krevet u ovom prostoru jednostavno ne funkcioniše i zauzima previše prostora.
U ovoj varijanti dio pregradnog zida se ruši kako bismo dobili otvoreniji prostor. Prema ovome što ste mi poslali ne bi trebalo da ima prepreka tome, pogovoto što se ne ruši cijeli zid. Ukoliko, pak, niste sigurni svakako preporučujem da se konsultujete sa kolegama koji se bave statikom.
Kuhinja je okrenuta na vanjski zid. Na taj način dobili smo priliku da pomaknemo ulaz u kupatilo i isto bolje organizujemo kako bi u njega stala barem uska perilica.

U glavnom prostoru spavanje je organizovano sa dva kauča na izvlačenje, dok je odlaganje predloženo putem dva ormara i putem visećih elemenata. Ručavanje je smješteno na dijelu gdje smo otvorili zid. Kako smo ograničeni sa prostorom prijedlog je postaviti barski stol i stolice. Kada je u pitanju stil namještaja predlažemo sivu, bijelu i boju drveta. Akcente možete dodati u vidu jastučića ili ćilima u nekoj od boja koje vam se sviđaju, a s obzirom na stil koji vam se sviđa to može biti zelena, plava i slično.

Kuhinja i kupatilo predlažemo da takođe budu u svijetlim bojama, bijela i drvo za kuhinju te sivo, bijelo, i eventualno tekstura kamena za kupatilo. Prostor je jako mali i poželjno je da ne bude pretrpan. Također jako je bitno da bojama bar vizuelno ne smanjujemo prostor nego da ga na sve načine učinimo prozračnim i širim. Prijedlog stilova je u nastavku.

U drugoj varijanti pokušali smo odvojiti prostore za spavanje, te tako ponuditi malo više privatnosti. Da bismo to postigli potrebno je pomjeriti kuhinju u glavnu prostoriju, a dio gdje se sada nalazi kuhinja iskoristiti za postavku kreveta za dvoje.
U ovoj varijanti kupatilo ostaje kakvo jeste, samo se umjesto kade postavlja tuš kabina. Nemoguće je ubaciti perilicu i zbog toga se ona planira u sklopu kuhinje. Prostor za ručavanje premješten je u glavnu prostoriju.

Stil uređenja kao i boje ostale bi iste, samo se za jedan od kreveta predlaže malo drugačiji kako bi mogao stati u prostor pored vrata kupatila.
Vrata prema glavnoj prostoriji možda bi bilo dobro zamijeniti kliznim vratima kako bi zauzimala manje prostora kada se otvaraju.
Kada je u pitanju odlaganje u ovoj varijanti na samom kraju kuhinje planirano je postavljanje ormara u koji biste odlagali sve što ste naveli, a za ostalo odlaganje planirati viseće ormariće iznad kreveta. U ovakvim prostorima nužno je iskoristiti i zidove kada je već prostor na podu ograničen.

Merima Delić, dia
Stručna saradnica
I vi možete dobiti BESPLATAN stručni savjet!
Pošaljite upit na
Uzimajući u obzir veliki broj zahtjeva, odgovor ćete dobiti u roku od mjesec dana.